Projects
Press
Contact
Emil Dervish
Projects
Press
Contact
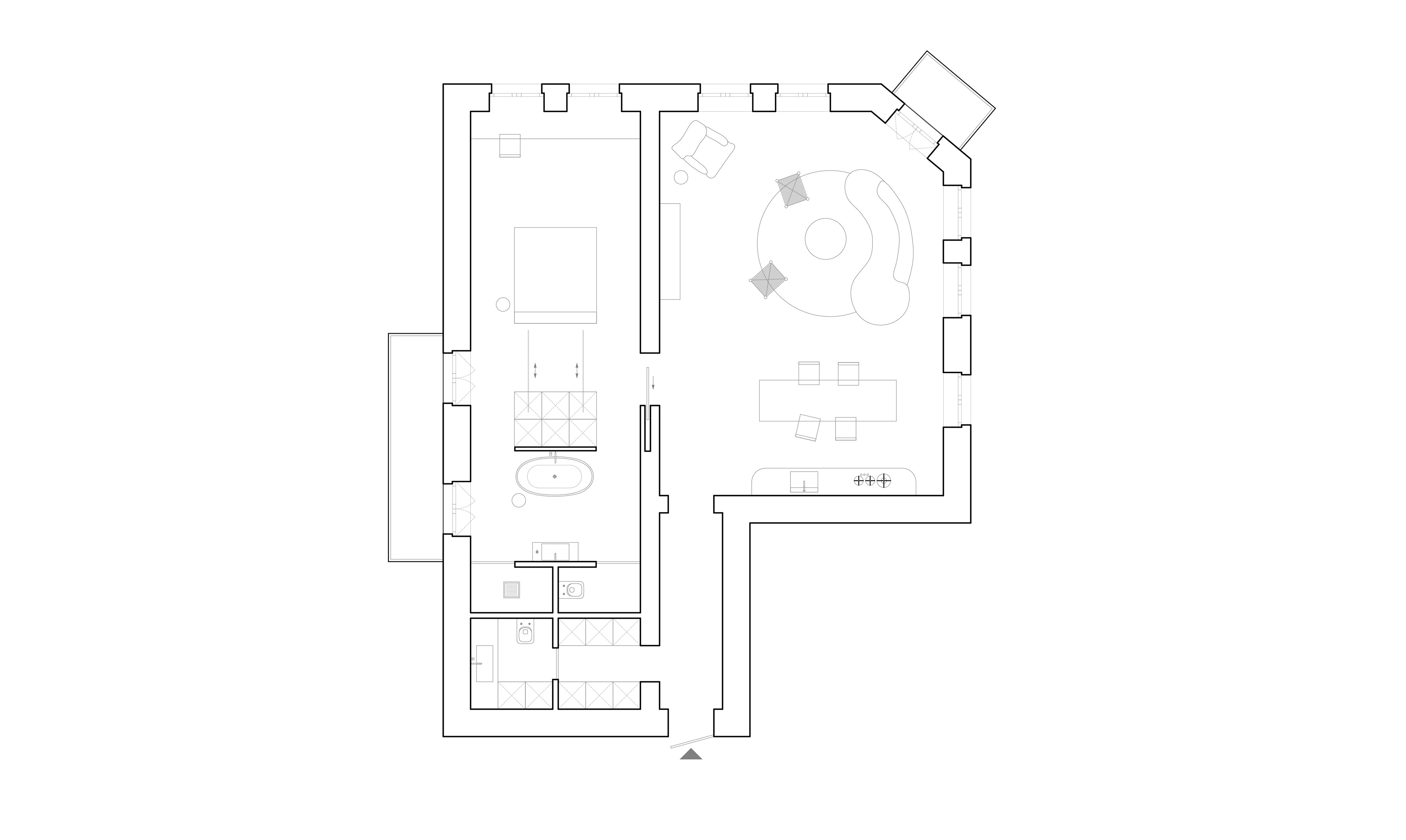
BEIGE
Architects: Evgeniy Bulatnikov, Emil Dervish Project Year: 2017 Project Area: 106 sq.m
↑
Back to Top