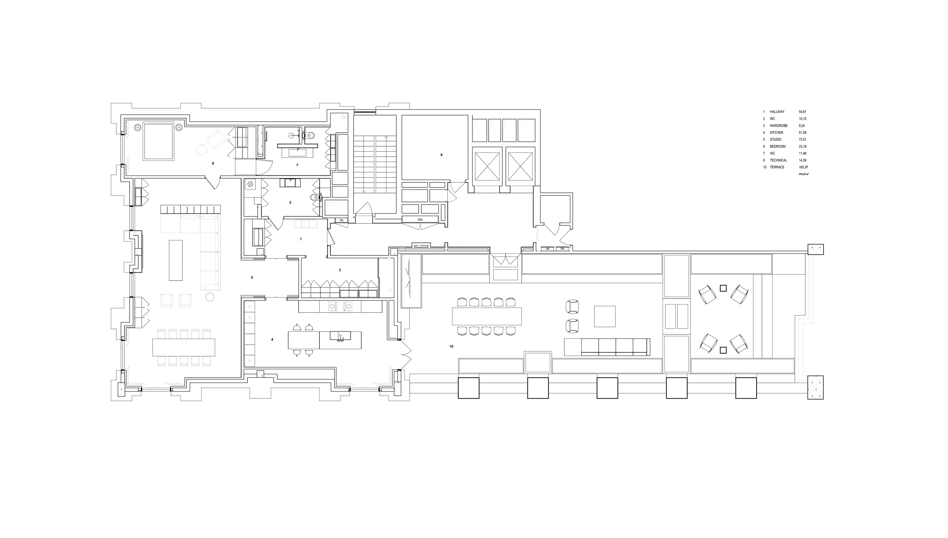
The apartment located on the fifth floor of a pre-revolutionary period (the early 20th century) apartment building in the heart of Kyiv was designed by Emil Dervish for his friend Marc Raymond Wilkins. The owner of the apartment is a talented filmdirector who previously lived in New York and





















