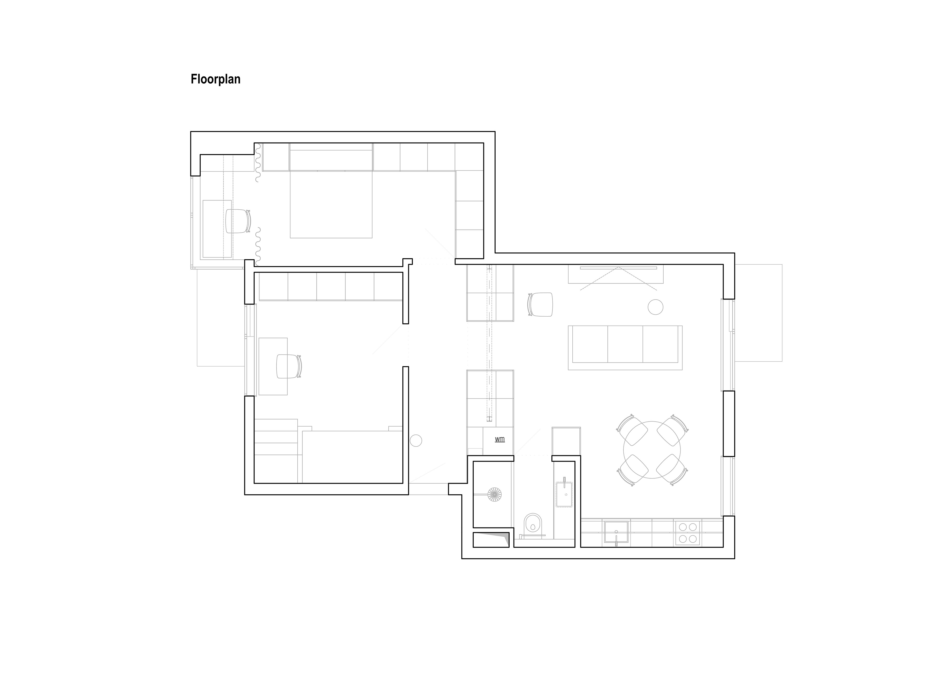
Copenhagen is a minimalist interior located in Copenhagen, Denmark. The space is characterized by natural tones and materials and utilizes built-ins to form partitions and additional storage space. Herringbone floors are laid out throughout the home, with small square tiles lining the floors and walls of the bathroom. The open floor plan allows natural light to spread throughout the space, and provide a more open and welcoming environment for guests.
 
      
      
      
      
      
      
      
      
      
      
      
      
      
      
      
      
      
     